Rose Hill Terrace, Brighton
£1,850 pcm
Property Features
- AVAILABLE NOW
- Modern Finish Throughout
- Fully Fitted Kitchen with Integrated Appliances
- Double Bedrooms
- Located by London Road
- Excellent Transport Links
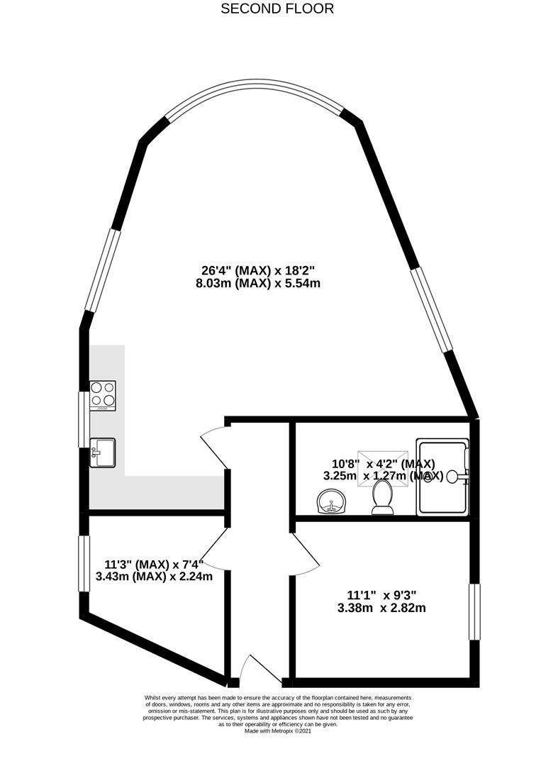
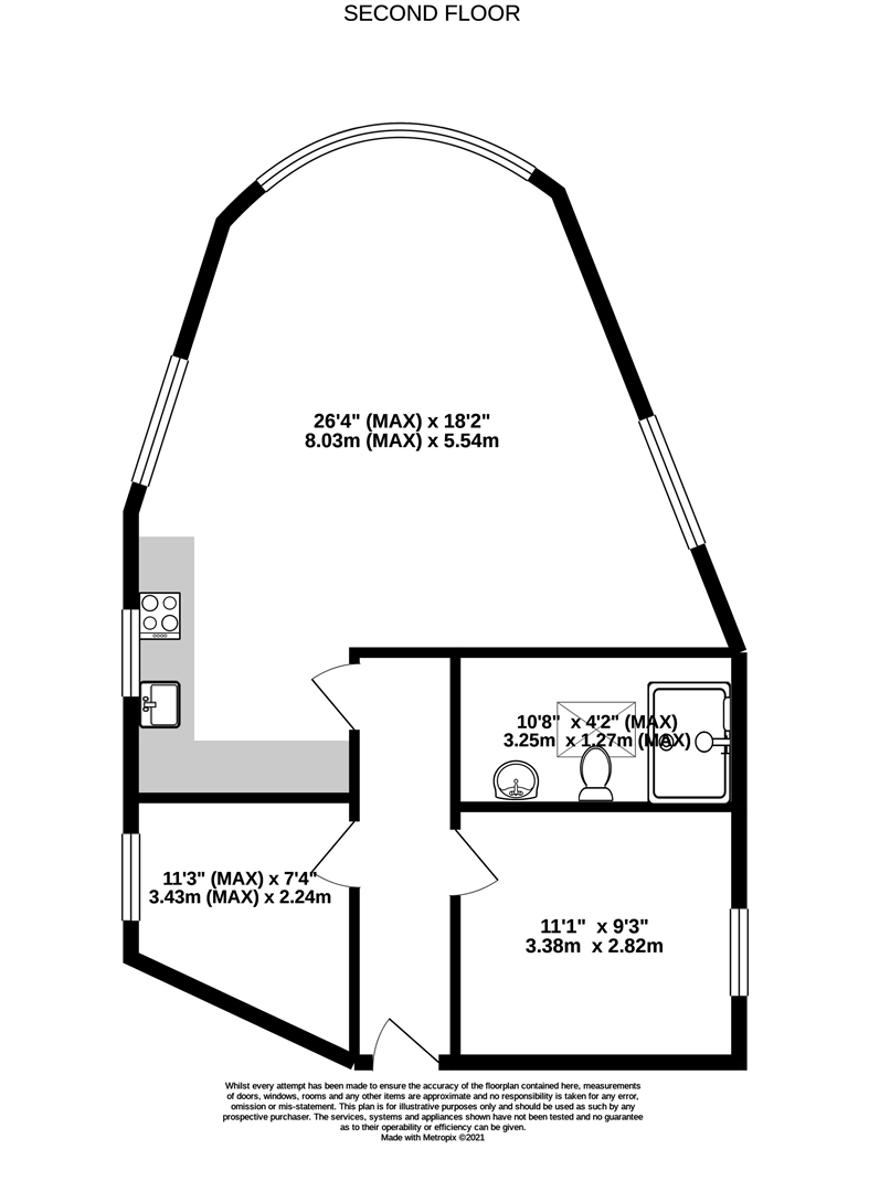
- Second Floor
- Furnished Option Available
- Students Welcome
Property Summary
***AVAILABLE NOW*** Stanfords Estates are delighted to present this spacious and modern second floor flat. This modern and spacious property is comprised of an open plan living and fully fitted kitchen area, with ample storage space as well as an integrated dining space, two double bedrooms and a modern and newly finished bathroom. Located in the highly sought after location of London Road, moments away from transport links and local amenities.*Disclaimer* In accordance with the estate agency act 1979 we advise that the landlord of this property has a connection with Stanfords Estates, for more information please contact our agency
Full Details
Living room / Kitchen
Bedroom 1
Bedroom 2
Bathroom



















