22 The Legacy, 84-86 Denmark Villas
Property Features
- Available December
- Roof Terrace
- One Double Bedroom
- Top Floor Flat
- Underfloor Heating
- Optional Furniture
- Newly Developed
- Modern Throughout
- Video Entry Telephone System
- Integrated Kitchen Appliances
Property Summary
Welcome to The Legacy, a stunning new build apartment located at 84-86 Denmark Villas. This luxurious one-bedroom property offers a perfect blend of modern living and comfort, making it an ideal choice for individuals or couples seeking a stylish home.As you enter the apartment, you will be greeted by a spacious open-plan living area that is designed to maximise both light and space. The contemporary layout allows for seamless interaction between the living, dining, and kitchen areas, creating an inviting atmosphere for relaxation and entertaining. The underfloor heating throughout the apartment ensures a warm and cosy environment, perfect for those cooler evenings.
The bedroom is generously sized, providing a tranquil retreat at the end of the day. The bathroom is elegantly appointed, featuring modern fixtures and finishes that enhance the overall appeal of the property.
Situated conveniently near Hove Station, this apartment offers excellent transport links, making it easy to commute to nearby cities or explore the vibrant local area. Additionally, the property includes parking for one vehicle, a valuable feature in this sought-after location.
With its prime location, luxurious amenities, and modern design, The Legacy is a remarkable opportunity for those looking to embrace a sophisticated lifestyle in Hove. Do not miss the chance to make this exquisite apartment your new home.
*Disclaimer* In accordance with the Estate Agency Act 1979 we advise that the landlord of this property has a connection with Stanfords Estates, for more information please contact our agency.
Full Details
** Available NOW ** Stanfords Estates are delighted offer this newly developed beautiful modern and spacious one double bedroom top floor flat to rent. The open plan living space has a large feature kitchen with appliances and two bathrooms.
Underfloor heating and potential to be furnished.
VIDEO AND 360 TOUR
Both video tour and 360 virtual tour are available.
YouTube video link: https://youtu.be/1XvjiOhbMyg
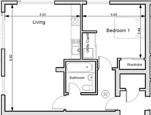
KITCHEN / LIVING ROOM 6.82 x 4.83
Open plan kitchen living room easterly aspect triple glazed windows, underfloor heating, ceiling downlighters, TV aerial point.
Modern fitted kitchen with floor and wall units, sink with mixer tap, integrated fridge/freezer, washer/dryer, dishwasher and microwave. Work tops with inset four ring hob, oven beneath and extractor over.
MASTER BEDROOM 4.04 x 3.44
Double sized bedroom, northerly aspect triple glazed windows, underfloor heating, ceiling downlighters, TV aerial point, built in wardrobes.
BATHROOM 2.01 x 1.57
Modern fitted white bathroom suite with low level w.c, hand wash basin, storage beneath, mirror above. Part tiled walls and ceiling down lighters and stainless steel heated towel rail.
OTHER
*Disclaimer* In accordance with the estate agency act 1979 we advise that the seller of this property has a connection with Stanfords Estates, for more information please contact our agency.
*Disclaimer* Please note the photos used in this advertisement may not be of the actual property being advertised but are of a very similar property in the building.

















